Want to add a hotel stay or change your flights?
Just call our team of cruise specialists to help build your dream cruise holiday today!
Prices based on 2 people sharing. Cruise only price does not include flights. Fly-cruise price may vary by chosen UK airport.
(Prices correct as of today’s date, are updated daily, are subject to change and represent genuine availability at time of update).
Cruise only holidays are financially protected by ABTA. Fly cruise holidays are financially protected by Avalon Waterways under ATOL number 1082
Please click here to check the essential travel requirements before booking this cruise.
Other dates available
Itinerary
Basel
Basel
Breisach
Kehl
Mainz
Rüdesheim
Cologne
Amsterdam
Amsterdam
*This holiday is generally suitable for persons with reduced mobility. For customers with reduced mobility or any medical condition that may require special assistance or arrangements to be made, please notify your Cruise Concierge at the time of your enquiry, so that we can provide specific information as to the suitability of the holiday, as well as make suitable arrangements with the Holiday Provider on your behalf.
What's Included with Avalon Waterways
WiFi
Award winning Panorama Suites with beds that face the view
Avalon Choice® with your preference of Classic, Active, or Discovery included excursions and sightseeing every day.
All onboard meals serving a la carte dinners
Complimentary sparkling wine with breakfast; wine, beer and soft drinks with lunch and dinner
Daily ‘Happy Hour’ serving complimentary wine, beer, spirits and cocktails
Club Lounge with 24 hour self-serve premium beverage station
Daily Afternoon Tea
Gratuities for the Cruise Director & Crew
Avalon Adventure Host available as your guide for fitness activities and active excursions
An expert Cruise Director
Flights and overseas transfers
Explore Avalon Vista




Dining Room
A spacious, open-seating dining room with elegant dining service and large panoramic windows is situated on the Sapphire∘ deck. With an elegantly simple design, you can enjoy a full buffet breakfast or lunch with special options for those who wish to eat lightly, and delicious four-course dinners in the evening.
AVALON FRESH
With our exclusive Avalon Fresh menu, you can take an indulgent cruise without drifting from your healthy habits. From energizing juices at breakfast to artfully crafted salads at lunch to high-protein plates at dinner, Avalon Fresh options—including vegetarian and vegan specialties—are available at every meal so you can guiltlessly partake in creative cuisine without sacrificing great taste.




Active Excursions
FOR THE MOVER.
Whether you enjoy sightseeing by kayak, on two wheels, or on your own two feet, you’ll relish the energy of Avalon’s Active excursion collection. Biking, hiking, and boating tours pack real get-up-and-go for those who like to do the same.
Panorama Lounge
Panorama Lounge & Bar with premium spirits, cozy seating, panoramic windows & dance floor
Fitness Centre
On Board Fitness Center
Although heart rates are naturally elevated on an Avalon cruise, every Avalon Suite Ship features an updated fitness center—complete with the latest cardio and weight-training equipment—for those not looking to give their abs, biceps or triceps a vacation.
Whirlpool Atop The Skydeck
Although heart rates are naturally elevated on an Avalon cruise, every Avalon Suite Ship features an updated fitness center—complete with the latest cardio and weight-training equipment—for those not looking to give their abs, biceps or triceps a vacation.
Avalon travelers enjoy immersive experiences at every turn. Soak up the culture and cuisine of fascinating regions, then toast the day with therapeutic bubbles in the soothing Sky Deck whirlpool.
Yoga On Board
Before you set out to discover the lives of kings, queens and conquerors, you can easily find your inner warrior, cobra or happy baby. Avalon Adventure Hosts kick-start each day with a combination of yoga poses, Pilates exercises and gentle stretches in the fresh morning air on the Sky Deck or with panoramic views in the Panorama Lounge. Downward dogs welcome.
Avalon Vista Cabins & Suites
Avalon Deluxe Stateroom
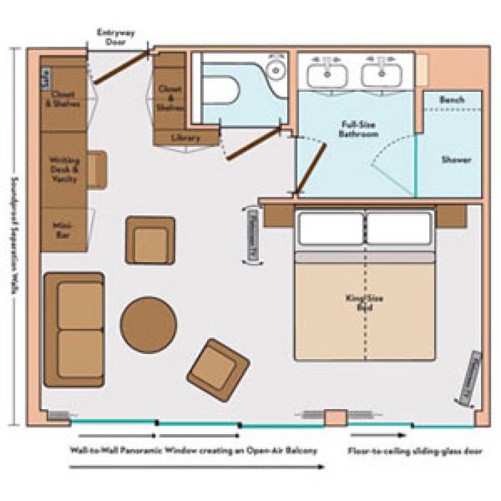
Royal Suite
Meet Our Cruise Experts
Our team of cruise experts have experienced all of our cruise lines first-hand, so they are ready to share their experiences and advice to ensure you choose the right cruise line, ship and destination to ensure you have the perfect holiday! Friendly, knowledgeable and reliable, you can count on each of our cruise experts to deliver helpful tips, advice and recommendations you won’t find anywhere else.

